Leave a Message

Thank you for your message. We will be in touch with you shortly.

Explore Our Properties

Property Description

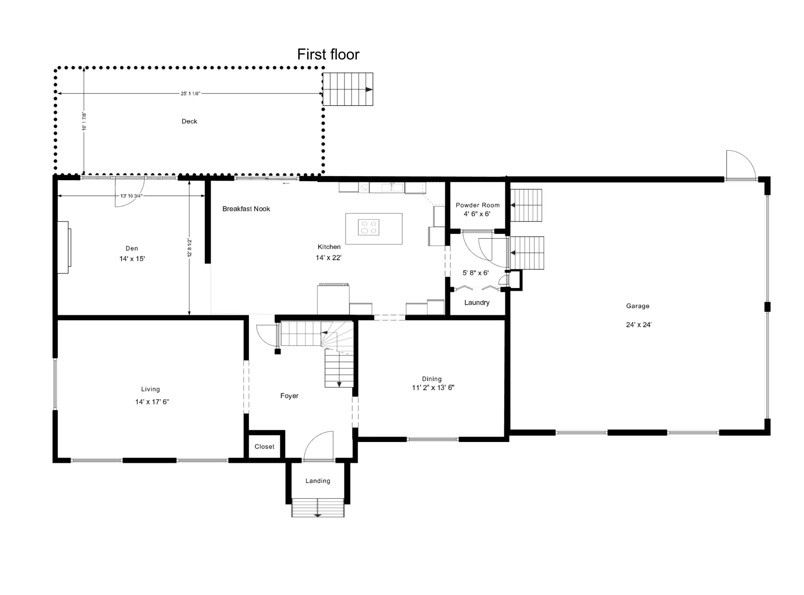
"$10,000 PRICE IMPROVEMENT! A wonderful opportunity to own this home at a new value. This home in Colchester's Country Meadows neighborhood combines comfort, convenience, and key system updates. A wide brick walkway leads to a traditional two-story layout with formal dining and living rooms, plus a cozy den with fireplace and glass doors to a large back deck and fenced yard. The kitchen offers a generous workspace and quality appliances, including an LG fridge, Bosch dishwasher, and GE wall oven. From the attached 2-car garage, enter through the mudroom, with a first-floor laundry nearby. Upstairs, four well-sized bedrooms include a primary suite with soaking tub, air jets, and walk-in closet. A recently installed Bosch natural gas/heat pump combo furnace delivers efficient heating and cooling, and central air keeps the home comfortable in warmer months. The full, dry basement adds excellent storage. Outside, the front of the house has been newly landscaped. For better connectivity, fiber optics are currently being installed in the neighborhood. The 1-acre lot includes a mix of flat, irrigated lawn and wooded slope, offering both usable yard space and natural privacy. Located just 2.9 miles from I-89 and close to schools, trails, and Lake Champlain. A list of travel time to various destinations is included in documents. An excellent opportunity in a sought-after neighborhood! Some cosmetic updates may be desired (see SPIR), and the home is priced accordingly.

Overview

Property Status
Sold
Lot Size
1 Acres
MLS ID
5048646
Property Type
Residential
Year Built
1988

Features & Amenities

Total Area
3,624 Sq.Ft.
Neighborhood
Colchester
Stories
2
Garage Spaces
2.0
Roof
Asphalt Shingle
Lot Features
Landscaped, Level
Heat Type
Natural Gas, Forced Air, Gas Heater, Heat Pump
Air Conditioning
Central AC, Other, Wall AC Units
Laundry Room
1st Floor Laundry
Fireplace
1 Fireplace, Wood Fireplace
Appliances
Electric Cooktop, Dishwasher, Disposal, Dryer, Freezer, Microwave, Wall Oven, Gas Range, Refrigerator, Washer, Gas Water Heater, Rented Water Heater
Other Interior Features
Soaking Tub, Ceiling Fan, Walk-in Closet
Sewer
1000 Gallon
Elementary School
Union Memorial Primary School
Middle School
Colchester Middle School
High School
Colchester High School
School District
Colchester School District
Sales Price
$640,000
Real Estate Tax
$8,606/yr

Downloads

195 Orchard Drive

Schedule a Tour

We would love to help you see this beautiful home! As a full-service brokerage, we can help you tour. Please submit an offer, and answer questions about the buying process.

Thank you

for your interest in 195 Orchard Drive, Colchester, VT 05446

195 Orchard Drive
Navigate
Colchester

Explore Colchester

read more

I'm Interested In

195 Orchard Drive

or
  • CallAdam Hammond

    License #082.0093288

    (802) 355-3763
  • Follow Us On Instagram