Leave a Message

Thank you for your message. We will be in touch with you shortly.

Explore Our Properties

Property Description

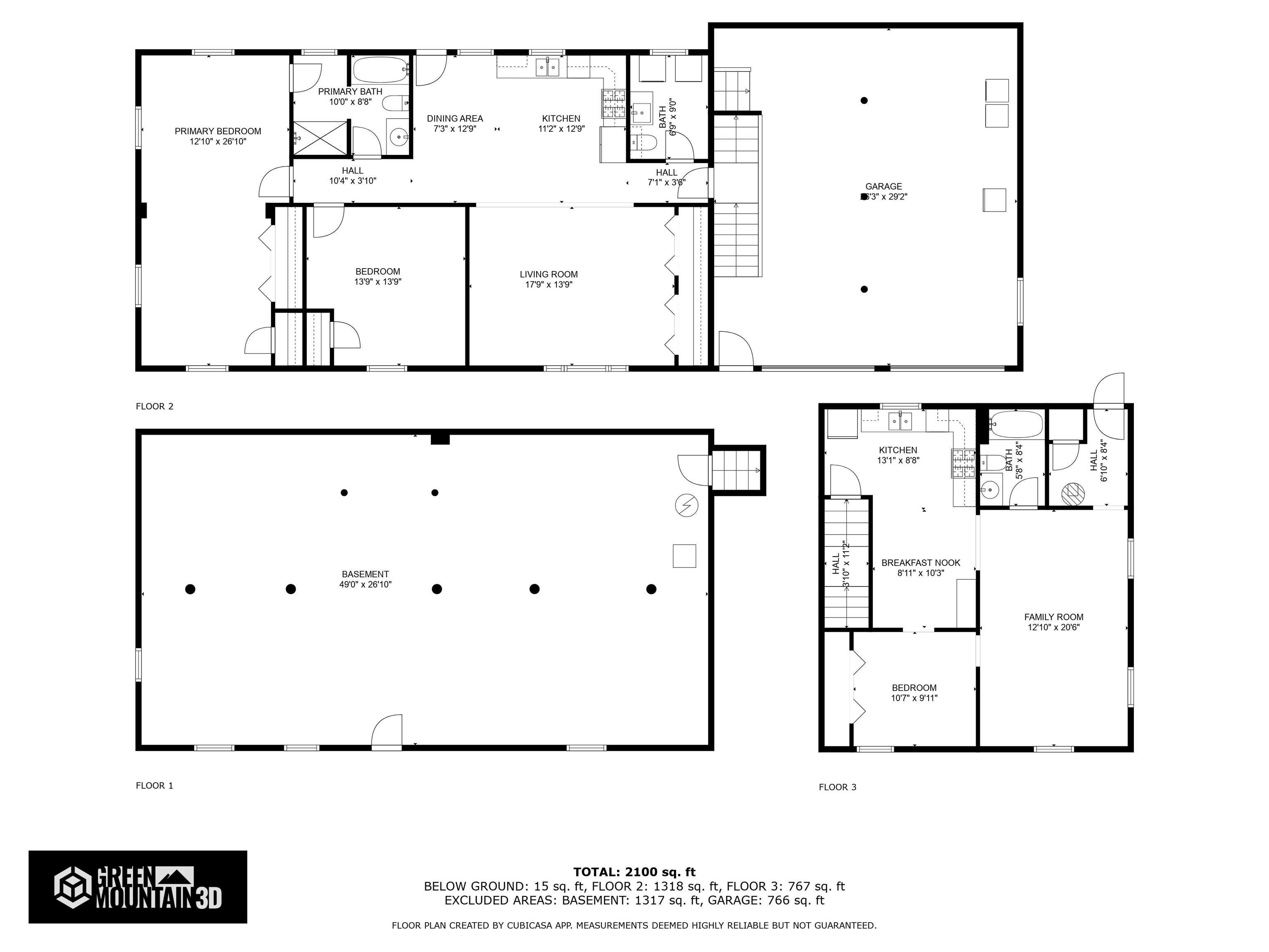
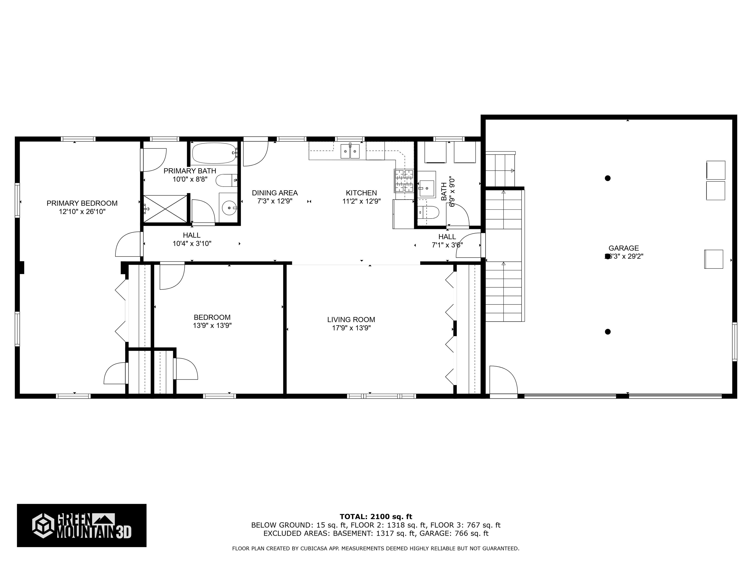
Long before this 2001 modular home was built, the same family has owned this property for many, many years. Permitted for four bedrooms, there are currently two bedrooms in the main house and one bedroom in the apartment. The unfinished basement level is where the future fourth bedroom can be built. The main home has an abundance of space and storage. The kitchen, dining, and living room is open for easy gathering and entertaining. A primary bedroom and second bedroom are on this floor as well as a full bathroom. Laundry room and a half bath are all on the main level for ease. The walk out basement level is a blank slate ready for your ideas and also is plumbed for another bathroom and plenty of space to build your fourth bedroom. The one bedroom and full bath apartment above the 2 car garage can be accessed through the garage or it's own private entrance in the back. Situated on a lovely half acre lot, there's also a spacious deck to sit and relax or set up your grill. Location is everything! Walk to anywhere in Stowe village, yet be tucked away on the appropriately named Pleasant Street. The charm is overflowing with quaint stores, restaurants, and coffee shops, school, post office, town hall and the church with it's iconic steeple. Of course, the legendary, world class Stowe Ski Resort is minutes up the Mountain Road as are even more restaurants to satisfy any tastes.

Overview

Property Status
Sold
Lot Size
0.5 Acres
MLS ID
5014346
Property Type
Residential
Year Built
2001

Features & Amenities

Total Area
3,564 Sq.Ft.
Neighborhood
Stowe
Stories
1
Garage Spaces
2.0
Roof
Architectural Shingle
Lot Features
Landscaped
Heat Type
Propane, Baseboard, Hot Water
Air Conditioning
None
Appliances
Dishwasher, Dryer, Range Hood, Microwave, Gas Range, Refrigerator, Washer
Sewer
Public
Elementary School
Stowe Elementary School
Middle School
Stowe Middle/High School
High School
Stowe Middle/High School
School District
Stowe School District
Sales Price
$850,000
Real Estate Tax
$10,469/yr
HOA
$23/yr

Downloads

35 Pleasant Street

Schedule a Tour

We would love to help you see this beautiful home! As a full-service brokerage, we can help you tour. Please submit an offer, and answer questions about the buying process.

Thank you

for your interest in 35 Pleasant Street, Stowe, VT 05672

35 Pleasant Street
Navigate
Stowe

Explore Stowe

It is a charming town known for its picturesque landscapes and a vibrant community.

read more
35 Pleasant Street
explore in 3d

I'm Interested In

35 Pleasant Street

or
  • CallAdam Hammond

    License #082.0093288

    (802) 355-3763
  • Follow Us On Instagram